RARE OPPORTUNITY IN PRIME POSITION!

It is evident as your walk through this solid brick and tile home, that it has been thoughtfully maintained and cared for. This solid blank canvas offers new owners the opportunity to establish themselves for years to come as is, renovate to suit their needs or hold as an investment.  

33 Shelshaw Street is truly the FULL PACKAGE! R40 zoning allowing a potential triplex site with appropriate approvals!

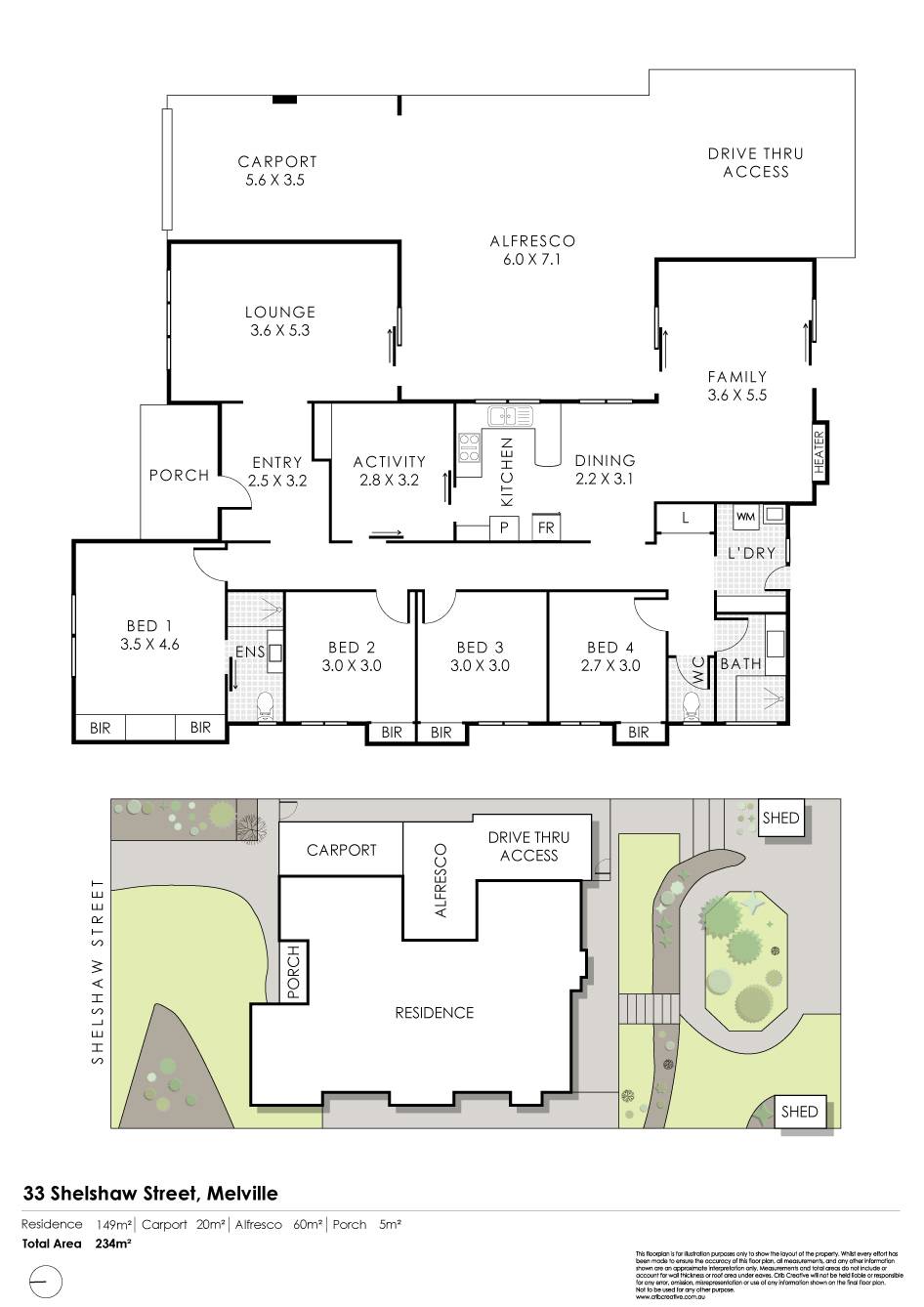
The home itself features abundant living space – front lounge with access to the central patio, activity room, renovated kitchen with an adjoining dining area and rear family room. Spacious master bedroom with ensuite and three additional bedrooms, all with built in robes. Plus, tastefully renovated main bathroom! There is also a separate laundry and WC.

The gardens are established, reticulated, and manicured throughout the front and rear yard. With generous covered rear access leading through the single garage, the potential to further modify this space is endless.

Additional Features Include:
- 817sqm R40 block
- Renovated kitchen & main bathroom
- Drive through covered access
- Reverse cycle AC to family room

- Neutral colour scheme – ready to personalise
- Two living areas
- Activity room
- Mature trees and gardens at front & rear
- Reticulated gardens & lawn|
- 2 garden sheds

The single level home is positioned within the sort after Melville, and is within close distance to local shops, amenities, public transport & schools – including Melville Senior High School.

Approx Rates 2022 – 2023

Water Rates $1410.00 p/a
Council Rates $2200.00 p/a

Don’t miss out – Contact Jaimee to discuss further!

4 2 2 817 m2
Address 33 Shelshaw St, Melville
Price SOLD for $1,030,000
Property Type Residential
Property ID 1001
Category House
Land Area 817 m2
Floor Area 234 m2

Agent Details

Jaimee Lee photo

Jaimee Lee

0422 854 722
View Profile