Leased

4 - 6 Month Lease ONLY

Are you seeking a short term lease? Well this property might be the perfect fit!
4 - 6 months lease available for the right Tenant.

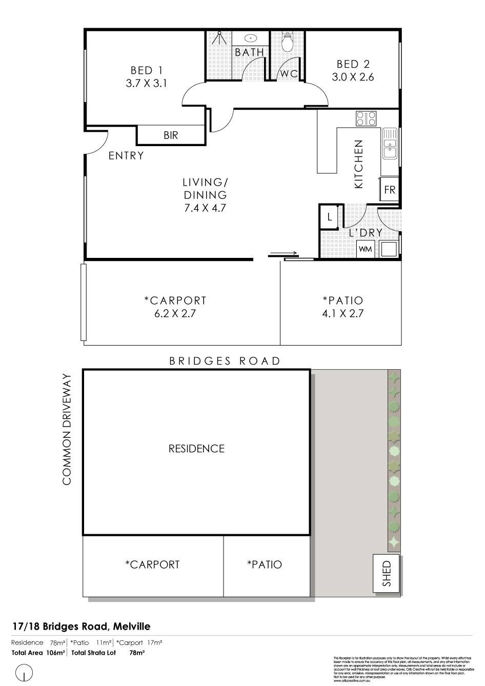
This 2 bedroom unit is nestled within a tranquil and well maintained complex. The unit consists of a spacious open plan lounge and dining which is overlooked by the kitchen. Ample bench space and gas cooking. Two bedrooms - ceiling fan to master. Bathroom with roman bath style shower and separate toilet and laundry space.

Easy care paved courtyard and single garage that can house 2 cars. Visitor parking available within the complex also!

Close proximity to Melville Plaza, cafes/restaurants, transport and Melville Recreation Center. Available from the 21st of Feb on a short lease of 4 to 6 months. Small pets may be considered.

Please contact Jaimee to register your attendance to advertised home opens to avoid disappointment. Home opens may be cancelled with short notice.

2 1 2
Available Leased
Address Unit 17, 18 Bridges Road, Melville
Price $535 per week
Property Type Rental
Property ID 1036
Category Unit

Agent Details

Jaimee Lee photo

Jaimee Lee

0422 854 722
View Profile