UNDER OFFER

 

40 Archidamus offers abundant potential, making this property one of the best opportunities in Coolbellup right now! Massive 830sqm corner block with R30 zoning – side access from Mopsa Way with HUGE gated workshop/garage.

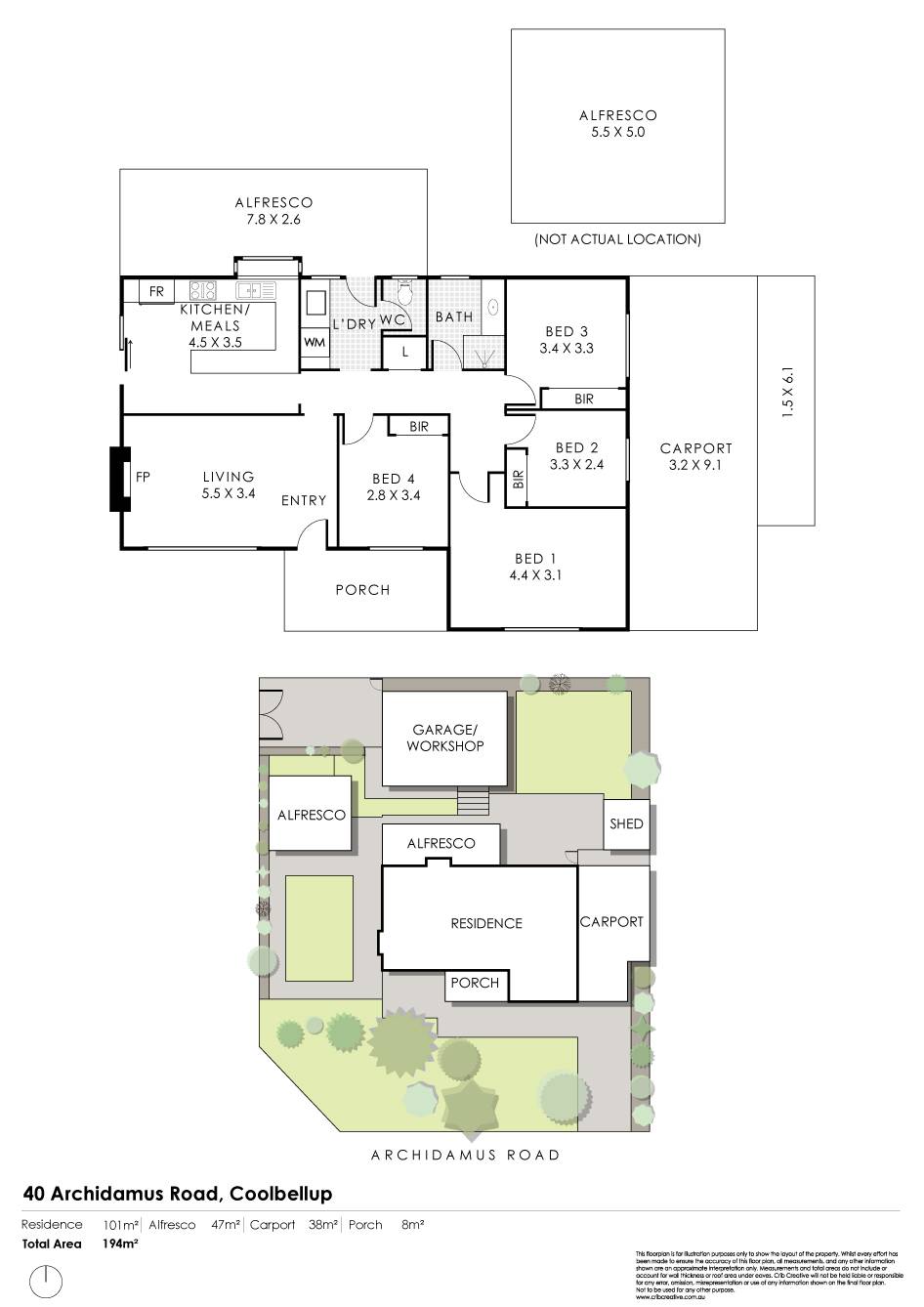
The late 1960s brick and tile home has been modernised over the years while keeping with the original features. The home consists of a renovated kitchen, plus updated bathroom and laundry.

Versatile yard with great access, minimal internal improvements needed OR take advantage of the R30 zoning and subdivide (STCA).

Property Features include:

Private front lounge room with a/c & fire place
Renovated kitchen - ample bench/cupboard space, quality stainless steel appliances, gas hob, rangehood and dishwasher

Breakfast bar/meals area
Updated bathroom and laundry room
4 nicely sized bedrooms, built in robes to 3 bedrooms & A/C to 2
Security screens/doors to most areas
HUGE yard space with gated and secure garage/workshop
830sqm – R30 zoning

Close proximity to local parklands, shops, schools, Bibra Lake Reserve and easy access to Murdoch University, Fiona Stanley Hospital and Perth CBD via Kwinana Freeway!

Don’t miss this great opportunity! Contact Jaimee to discuss further!

 

4 1 2 830 m2
Address 40 Archidamus Rd, Coolbellup
Price SOLD
Property Type Residential
Property ID 1098
Category House
Land Area 830 m2
Floor Area 101 m2

Agent Details

Jaimee Lee photo

Jaimee Lee

0422 854 722
View Profile