Sold

UNDER OFFER !

SOLD ! UNDER OFFER !

Now Reduced to Sell !   A Must See !

Open Saturday

Absolutely Superb living here, so close to the river foreshore, Left bank, Dome, Yatch clubs, restaurant's, Fremantle and every amenity!

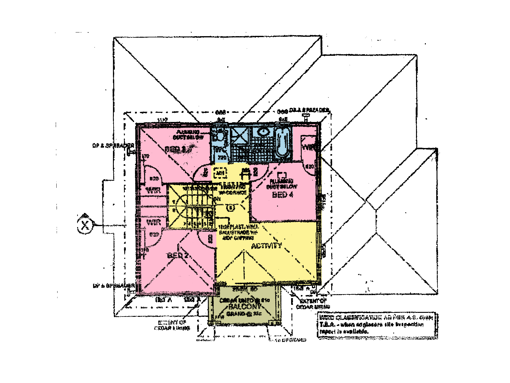
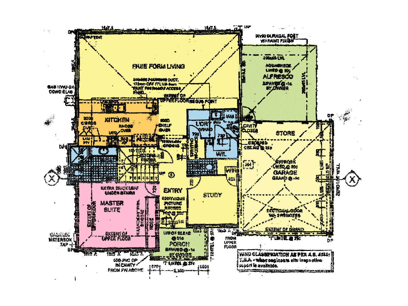
This stunning light and bright 4 bedroom, 2 bathroom plus study, 2007 built by 'INVOGUE Homes' in small private group (with no strata fees!), Must be viewed !

Representing superb value and is priced to sell !
Currently leased out till the 25th of August at $600 per week and the tenant can stay on if the buyer chooses.

Some of the features for this executive style 2 storey home include:
Spacious open plan living, (2 living areas) downstairs with black butt flooring, generous sized kitchen with European appliances (inc a dishwasher), stone benches, an enormous amount
of cupboard space, good sized bedrooms (all with birs), high ceilings, lots of storage areas, ducted reverse cycle air conditioning, fantastic outdoor area with built in bar be que, neutral decor through out, double lock up remote garaging, all nestled on 352 sqm survey strata block, plus more !

Summing up, this free standing Property Represents Great Value ! For the buyer who wants to be close to the river, enjoying a lock and leave lifestyle and those stunning strolls along the foreshore.

Well Below Replacement and an Excellent Investment in popular East Fremantle !

For Further Information Please Call

EXCLUSIVE AGENT MARK THORN ON 0412912557.

Features

Study
4 2 2 352 m2
Address 56 B Preston Point Road, East Fremantle
Price SOLD for $870,000
Property Type Residential
Property ID 563
Category House
Land Area 352 m2

Agent Details

Jaimee Lee photo

Jaimee Lee

0422 854 722
View Profile